EDIFICIO PER RESIDENZE SPECIALI A PARIGI
Cité Internationale Universitaire de Paris, Parigi - Ente Maison de L'Italie - 2013 - 3800 sm
Dopo esserci stato innumerevoli volte in qualità di visitatore, torno in questo luogo in veste di progettista.
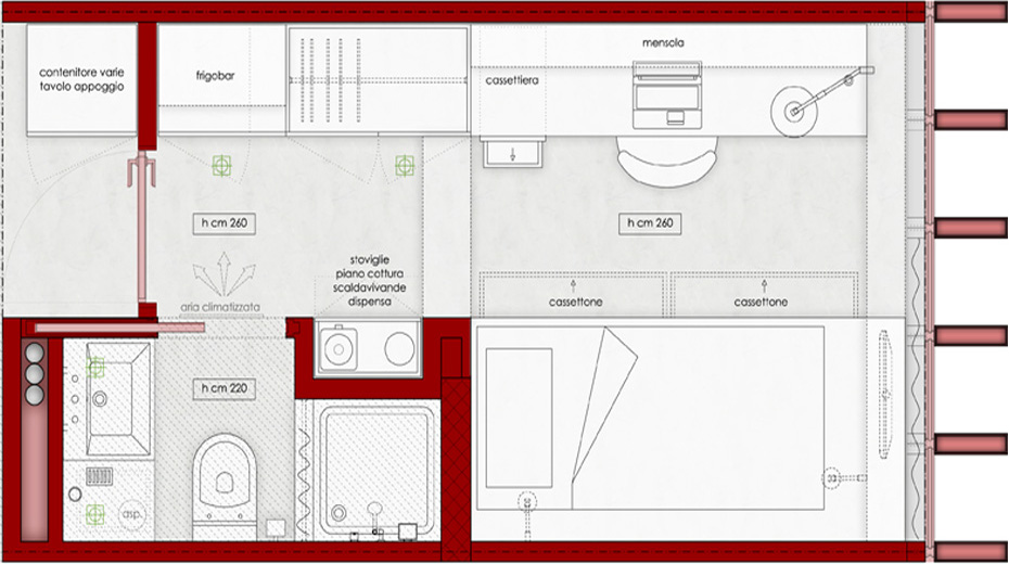
L'Ente espone il problema da risolvere: l'attuale edificio, progettato da Piero Portaluppi, richiede un ampliamento per soddisfare la richiesta sempre maggiore di camere per studenti.
Programma ambizioso, vincoli esasperanti, contesto impossibile. A poca distanza, ben visibili, le Maison di Svizzera, Brasile e Olanda: Le Corbusier, Costa, Dudok gli Autori!
Il tema del rapporto contestuale, diretto e indiretto, è dunque fondamentale: optiamo per la costruzione di un nuovo edificio, lasciando intatto l'originale. Sopra di un basamento che ci permette comunque il "contatto" sorge il nuovo corpo, a pianta quadrata, quattro piani fuori terra, sospeso su pilotis a doppia altezza.
L'architettura si manifesta con chiarezza: da un lato ricorre ad una didascalica interpretazione dei" cinque principi", dall'altro propone una paradigmatica e narrativa dimensione abitativa "all'italiana".












